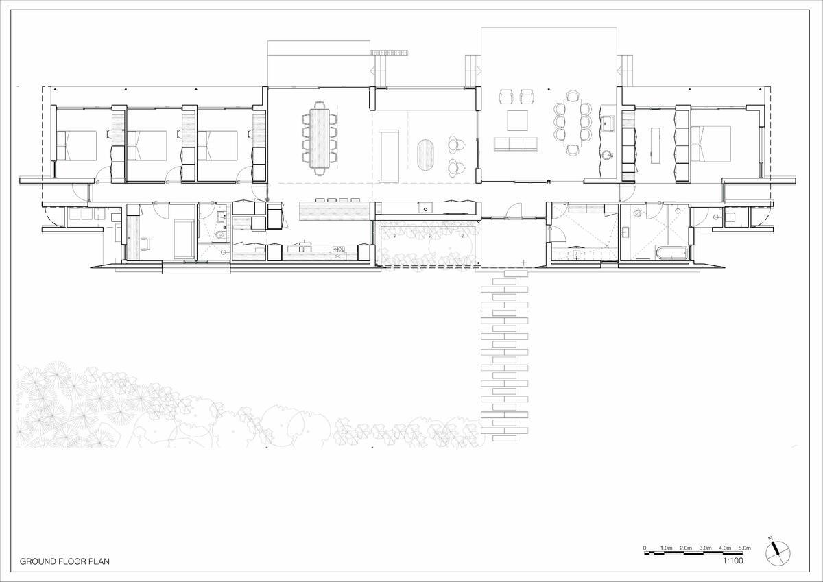
A new house in Wombat, near Young in regional NSW, utilizes a simple linear plan to respond to the site.
Facing due north and using a palette of robust, economical materials, this building designed by Richard Cole Architecture was carefully assembled to accommodate a young family.
Modest in size and budget, this building celebrates its place and the horizontality of the landscape.
The brief was for a modest contemporary rural house for a professional couple and their young family.
The building was to be carefully sited on the 40-hectare property which had not accommodated any house on it previously.
The site had electricity, but no other services.
So it had to be self-sufficient for both water supply and sewerage treatment.
By its nature, the building had to be utilitarian with a simple, direct response to the horizontality of the landscape and beautiful site.
One of the hardest decisions the Richard Cole Architecture design team faced was where to site the house.
They camped on the property and looked at several sites which were considered and discussed them at length with their clients.
Once the decision was made, the design of the house arose directly from that specific location.
Environmentally sustainable design was very important to both the client and architect.
So a passive solar response was essential.
The location has a large seasonal temperature range, with hot dry summers and frosts and occasional snow in winter.
So the provision of cross ventilation, ceiling fans, and maximising natural daylight were sustainable design attributes incorporated in the design to minimise the requirement for artificial heating and cooling.
Face brickwork was used externally for its durability, texture, and low maintenance requirements, whilst internal brickwork was used for its thermal mass qualities as well as loadbearing capacity and durability.
A reverse brick wall was used on the southern façade to provide high insulation and values combined with thermal mass, also achieved through a concrete slab floor.
Apart from electricity, the site had no access to services, so a water harvesting and reticulation system, along with onsite sewerage treatment and a 3.0kw grid-connected solar Photovoltaic array were installed.
Low maintenance materials were selected for their longevity, durability, and weathering properties.
Project Details
Project Size – 240 m2
Site Area – 40 ha
Completion Date – 2018
Building Levels – 1
Project Team
Architecture
Richard Cole Architecture
Richard Cole Architecture is a small design-based studio located on the Northern Beaches of Sydney.
www.richardcolearchitecture.com.au
Construction
A.D Tanner Constructions
A.D Tanner Constructions is a family-owned business with a strong history of delivering quality residential, commercial, new builds, and renovations in and around the Young district of NEw South Wales.
www.tannerconstructions.com.au
Photography
Rachel Lenehan Photography
Rachel is an established commercial photographer based in Murringo, NSW.
www.rachaellenehanphotography.com.au
Photo Gallery
Click on a thumbnail image to enlarge.
Design © 2022 Richard Cole Architecture. All Rights Reserved.| Images © 2022 Rachel Lenehan Photography. All Rights Reserved.
The Builtworks Quest
At Builtworks, we’re on a multi-year quest to document, showcase, and spotlight the best of Australia’s built environment.
That’s why we’re creating this comprehensive online archive and educational resource that showcases a diverse and eclectic range of project types and scales.
Together with showcasing older exemplars of enduring merit, we spotlight and celebrate new and recent additions to Australia’s built environment.