Xavier

Xavier

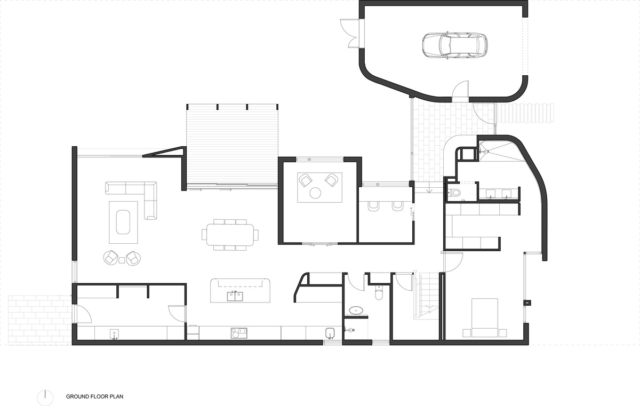
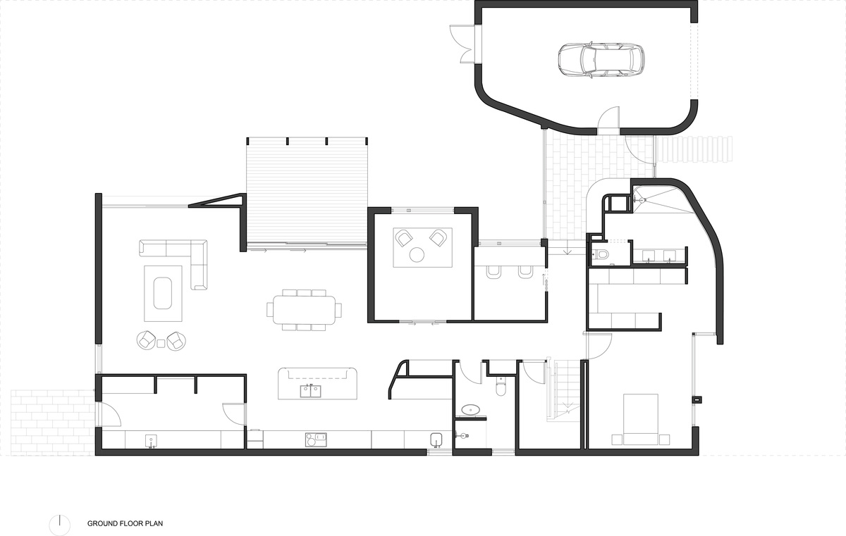
Located at the end of a dead-end street, Xavier breaks away from its neighbourhood context by eliminating a front fence – a simple gesture that allows the site to be spatially appropriate well beyond its title boundaries.

Within this context, this house designed by architects Bryant Alsop becomes the physical barrier between the public and private realms – a layered, folding screen.

White painted brickwork folds in to identify the entrance and upon entering the house, a large, light-filled entry creates a moment for residents and guests to pause, take off their shoes, and take in the house and landscape.

Natural materials – timber, wool, marble – and soft tones throughout bring calmness as you move through and up into the house.

North-facing windows allow natural light to penetrate deep into the living zones.

Programmatically, the house divides into fairly traditional zones – children upstairs; parents downstairs at the front, and living spaces opening onto a north-facing lawn and entertainment area.

The Bryant Alsop design team pushed service areas to the southern edge of the plan which allowed maximum aspect to the north.

The project has a strong focus on sustainable systems – solar power, heat pump HWS, and heat-recovery heating/cooling; as well as employing good passive design principles, low-VOC products, and high-performance glazing.

Project Details

Project Size – 368 m2
Site Area – 561 m2
Building Levels – 2
Completion Date – 2022

Project Team

Architecture

Bryant Alsop

Bryant Alsop’s work spans residential, education, and commercial sectors, and is underpinned by a belief that architecture should be uplifting, beautiful, and honest.

www.bryantalsop.com.au

Photography

Emily Bartlett

Emily is a well-established Melbourne-based commercial photographer specialising in architecture, interiors, and design.

www.emilybartlettphotography.com

Photo Gallery

Click on a thumbnail image to enlarge.

Design © 2022 Bryant Alsop. All Rights Reserved.| Images © 2022 Emily Bartlett. All Rights Reserved.

The Builtworks Quest

At Builtworks, we’re on a multi-year quest to document, showcase, and spotlight the best of Australia’s built environment.

That’s why we’re creating this comprehensive online archive and educational resource that showcases a diverse and eclectic range of project types and scales.

Together with showcasing older exemplars of enduring merit, we spotlight and celebrate new and recent additions to Australia’s built environment.