The clients for this project were a professional couple with a large, combined family. They wanted a contemporary addition to their suburban weatherboard cottage which would allow them to indulge in their love of gardening and to cook and entertain in style.
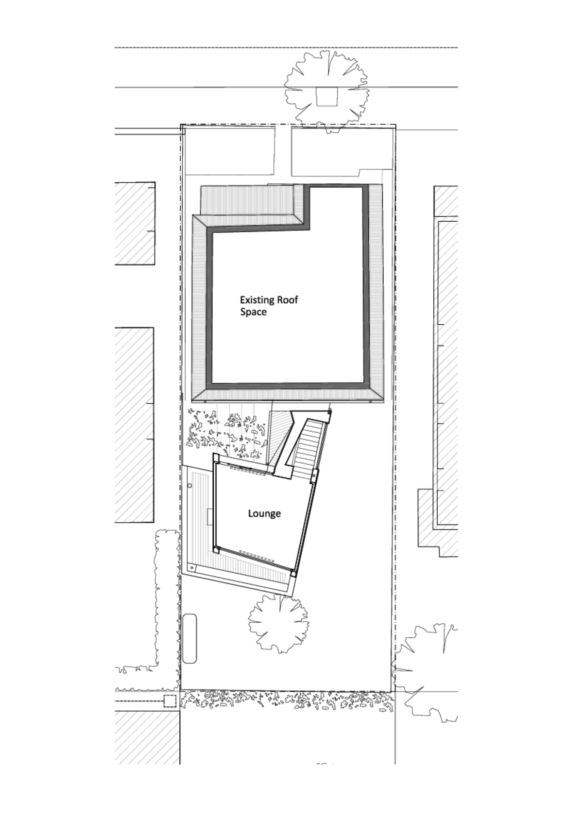
Julie Firkin Architects’ design resolved the challenge of a south-facing back garden by creating a sun-court.
That allowed sunlight to penetrate the new living spaces from the north in winter.
And it served to separate the new addition from the old house so that it reads as a clearly articulated pavilion in a garden.
A number of dining and entertaining spaces work off the hub of the kitchen which is designed to showoff the home-cook in her or his best light.
Project Details
Completion date – 2011
Project Team
Architecture
Julie Firkin Architects
Julie Firkin Architects was established in 2009 and specializes in designing aspirational, carefully crafted and commodious homes. Our projects can transform older dwellings, unlock the potential of constrained, inner-city or suburban sites, or embrace the natural beauty of regional and rural areas. We incorporate passive solar design principles to ensure that our designs are thermally efficient, light and comfortable.
Julie has been involved in the design and delivery of a variety of projects both in Australia and internationally, including large mixed-use projects in Melbourne and bespoke projects in Europe and the USA. Julie holds a Master in Architecture degree from Harvard University and regularly leads design studios at the University of Melbourne, Monash University and RMIT.
Construction
OTS Developments
Based in Melbourne, OTS Developments specializes in the construction of cutting edge commercial and residential architectural projects across Melbourne, striving to maintain close interaction and communication with their clients to ensure a high standard of success and timely delivery of projects.
Photography
Christine Francis
Melbourne photographer Christine Francis specializes in interiors, architecture and design. She greatly appreciates diversity and collaboration in her work, a preference that shines through in her images. Francis’ academic background is in visual communication – her photographs have featured projects in Australia and abroad.
Photo Gallery
Click on a thumbnail image to enlarge.
Get the Builtworks Letter
In every edition of the Builtworks Letter, you’ll get the behind-the-scenes backstory as to how buildings are designed, built, and brought to life.
You’ll hear compelling stories, learn surprising ideas, meet engaging characters, and discover unique voices.












