Listen to Melonie Bayle-Smith
Architect Melonie Bayl-Smith of BIJL Architecture takes us behind the scenes and deconstructs the Zuster House project.
You’d think the renovation of a federation-style semi would be straightforward.
But this project is in a Sydney suburb that’s full of high-value, heritage-conservation assets.
So there are lots of eyes scrutinizing every move you make.
***
Project Description
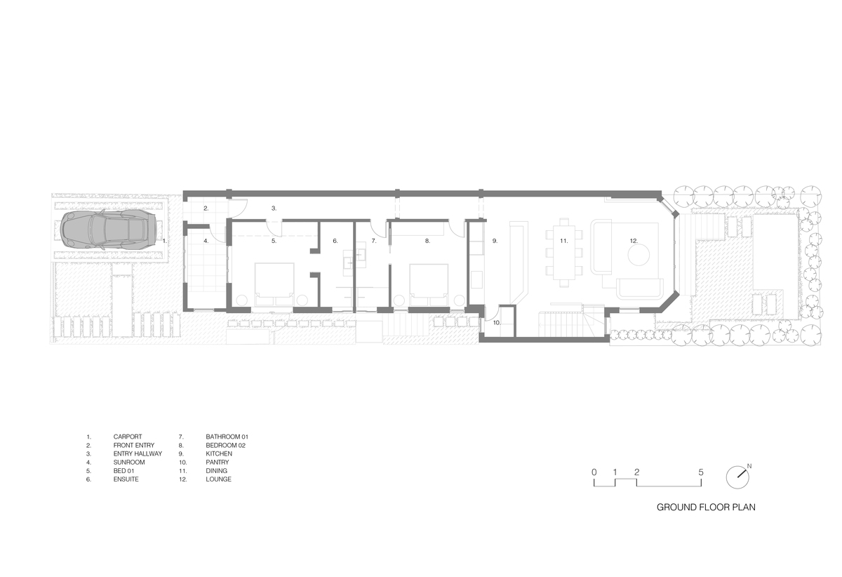
The transformation of a dark and pokey terrace in Kirribilli highlights the participatory nature of architecture: just as every family member is different, a home should reflect its residents’ distinctive habits and needs.
The mirror image home of recent Bijl Architecture project, Doorzien House, Zuster, Dutch for sister, is right next door yet a world way in terms of realisation.
Although Bijl Architecture was tasked with a similar brief to transform the terrace into a spacious home that makes better use of redundant space, improves the connection between the floor levels, outdoors, and those splendid Sydney Harbour views, the results are startlingly different.
Where Doorzien favours interplay of light and solid and void; Zuster’s site, context, and occupant preferences combine in a unique expression.
The Bijl team kept original features in the house and on site – like the street views through the site to Sydney Harbour beyond.
On the ground floor, a generous open-plan environment with large windows overlooks the harbour.
A new kitchen anchors this living space, and a new stair was placed into an existing “step-out” in the floor plan, preserving and extending the view.
Bijl’s redesign of the lower ground floor – previously an underutilised area that prioritised the laundry, clunky TV room, and dark spare bedroom – now accommodates a flexible living room that opens to the garden, as well as the children’s new bedrooms, a reconfigured laundry and a generous bathroom.
Replacing the existing astro-turfed rear yard was imperative, with the garden now returned to lawn and greenery.
Zuster explores a classic materials palette with muted tones, textured pressed metal, and characterful timber panel features speaking of tradition and grace.
On the rear facade, it borrows from the industrial maritime heritage of the area with sleek black brick and black-oxide mortar.
Key Materials Used
PGH Bricks
PGH Bricks & Pavers™ is one of Australia’s largest clay brick manufacturers.
It offers a broad range of bricks and pavers for residential, architectural and commercial applications on Australia’s East coast.
PGH Bricks & Pavers™ is committed to service excellence and has manufacturing capabilities in South Australia, Victoria, New South Wales and Queensland.
Sterland Roofing and Cladding
Sydney-based Sterland Roofing and Cladding supplied and installed the zinc cladding and hoods.
Project Details
Completion Date – 2019
Building Levels – 2
Project Team
Architecture
BIJL Architecture
BIJL Architecture is an ambitious Sydney practice seeking to challenge the status quo. Led by Melonie Bayl-Smith, they believe that our homes, schools, and places of gathering are an expression of our communities’ collective values and hopes, for now and for the future.
Structural Engineering
Cantilever Consulting Engineers
Cantilever Consulting Engineers is one of the most sought after structural engineering firms for architectural buildings in Sydney.
Their focus is on high-end architectural buildings where an experienced eye for design is required and where solutions above the ordinary are required.
Founded in 2010, their award-winning team of 15 have completed over 3,000 projects.
Cantilever Consulting Engineers are known for their dedication to excellence, innovation and sustainability, and understanding of design.
Stormwater Engineering
Partridge
With over 35 years’ experience, Partridge is a multi-disciplinary engineering consultancy, providing services in the field of structural, civil, hydraulic, stormwater, remedial, forensic, and event engineering.
With branches in both New South Wales and Victoria, they operate nationally and abroad to deliver consistent outstanding solutions.
Landscape Architects
Ground Ink
Ground Ink is a Landscape Architecture studio based in Chatswood, New South Wales.
The practice is comprised of accomplished landscape architects with over thirty years of combined project experience.
Construction
SKOPE Constructions
Skope Constructions is managed by John and Brent Carolan.
They combine to provide over 40 years of experience in the disciplines of Construction and Project Management, Quantity Surveying, and Property Economics.
Their work includes the construction of over 100 residential, commercial and industrial projects covering a diverse range of construction methods and techniques.
Construction projects completed under their management have ranged in value between $500,000 and $15,000,000.
Photography
Katherine Lu
Katherine is a well-established Sydney-based commercial photographer specialising in architecture and interiors.
Photo Gallery
Click on a thumbnail image to enlarge.
Design © 2020 Bijl Architecture. All Rights Reserved.| Images © 2020 Katherine Lu. All Rights Reserved.
The Builtworks Quest
At Builtworks, we’re on a multi-year quest to document, showcase, and spotlight the best of Australia’s built environment.
That’s why we’re creating this comprehensive online archive and educational resource that showcases a diverse and eclectic range of project types and scales.
Together with showcasing older exemplars of enduring merit, we spotlight and celebrate the very best new and recent additions to Australia’s built environment.












