Led by Clinton Cole, CplusC Architectural Workshop designed ZZ Top House, an update to a dual-frontage Victorian terrace house in McMahon’s Point, Sydney.
When visiting this house, it’s hard to tell if you’re inside or out.
That’s because the topsy-turvy design deliberately confounds perspective by bringing in the outdoors.
Natural light pours into the sky-high living spaces through zigzagging louvres and skylights to create a captivating inside world where the home’s beautiful details are the view.
The Site
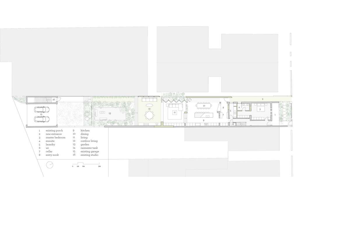
The CplusC design team confronted the challenge of creating visual interest inside an unusually long and inward-looking site with no outlook, bounded by two warehouses.
Inspired by two ideas, the geode and the zigzag, they designed a soaring yet approachable living space that delights the eye without views of the outside.
A Living Geode
With no outlook to work with, CplusC’s design for ZZ Top House takes cues from geodes.
Geodes are rocks that contain hollow cavities lined with jagged crystals that create dazzling inner worlds.
In the same way, ZZ Top House opens from an unassuming exterior to reveal a fascinating space inside.
Bold 3.8-metre-high louvres and skylights admit light and the outdoors to this secret world, creating a beautiful symphony of light and shade nuanced by season and time of day.
An accordion rhythm compresses and connects the vast spaces, wittily expressed by a recurring zigzag motif explored in the floors, the louvred windows, and even the kitchen bench.
The Design
CplusC’s design for the four-bedroom, 2.5-bathroom home retained the entire original terrace house, transforming most of the ground floor into a massive living area flowing from inside to out.
Moving the entrance from the front façade to the side of the building gives instant access to the rear living spaces for an arresting first impression.
At entry level are the kitchen and dining rooms, with lofty louvres, skylights and vertical lighting cavities emphasising the big airy spaces.
One level down, the living room transitions to the undercover outside living space and garden.
A firepit and custom benches are the perfect places to enjoy an illuminated mural projected onto the massive warehouse wall by night.
Turning The House Inside Out
For guests entering, there’s always a double-take: are they inside or outside?
The design dissolves the feeling of being indoors with ample use of glass inviting the outside in.
This effect is heightened by the external elements that look into this private world, with the original arches, rear terrace house balcony, and exterior terrace walls creating abundant visual interest inside.
These outdoor reference points conspire with the extraordinary volume of the living spaces to create a light and open feeling.
It’s like living outside.
Sustainable
CplusC designed and built ZZ Top House with the integrated sustainability features the firm is known for.
The house has a 10kWhr solar system supported by Tesla battery storage and uses cross-ventilation, thermal mass optimisation, insulation, and passive solar strategies to achieve near-zero electricity bills throughout the year.
Recycled floorboards, dry-pressed bricks, and restoring rather than replacing heritage features, reduced the project’s embodied energy while creating an endlessly interesting interior.
Project Details
Project Size – 523 m2
Site Area – 435 m2
Completion Date – 2021
Building Levels – 2
Project Team
Project team
Design and Construction
CplusC Architectural Workshop
Founded in 2005 and led by architect Clinton Cole, CplusC specialises in designing and delivering site-specific architectural projects. Their design and construction team for this project included:
- Project Architect – Carmen Chan
- Project Manager – Christina Cheng
- Architectural Assistant – Hayden Co’burn
- Architectural Assistant – Matt Reid
- Foreman – Barry Bradley
- Leading Hand – Nathan Krstevski
Structural Engineering
Partridge Engineers
With over 35 years of experience, Partridge is a multi-disciplinary engineering consultancy, providing services in the field of structural, civil, hydraulic, stormwater, remedial, forensic, and event engineering.
Photography
Murray Fredericks
Murray Fredericks is a photographer and cinematographer whose work has been acquired by major public and private collections around the world.
Murray’s commercial clients include international brands and agencies, tourism bodies, hotels, architects, designers and developers.
www.murrayfredericksphotography.com.au
Michael Lassman
Check out Michael’s work on Instagram.
Photo Gallery
Click on a thumbnail image to enlarge.
Design © 2022 CplusC Architectural Workshop. All Rights Reserved.| Images © 2022 Murray Fredericks | Michael Lassman. All Rights Reserved.
The Builtworks Quest
At Builtworks, we’re on a multi-year quest to document, showcase, and spotlight the best of Australia’s built environment.
That’s why we’re creating this comprehensive online archive and educational resource that showcases a diverse and eclectic range of project types and scales.
Together with showcasing older exemplars of enduring merit, we spotlight and celebrate new and recent additions to Australia’s built environment.












































