Brighton St Residence

Brighton St Residence

Milton Architecture’s client brief for the Brighton Street residence was to create a family home in the tight knit inner Melbourne suburb of Richmond.

The challenges presented by this brief in relation to the small nature of the site included:

  • creating a spatial program that satisfied the requirements of a family home
  • balancing privacy and aspect on an exposed corner block
  • creating a sense of openness in particular for ground level internal spaces
  • providing opportunities for outdoor amenity across multiple levels

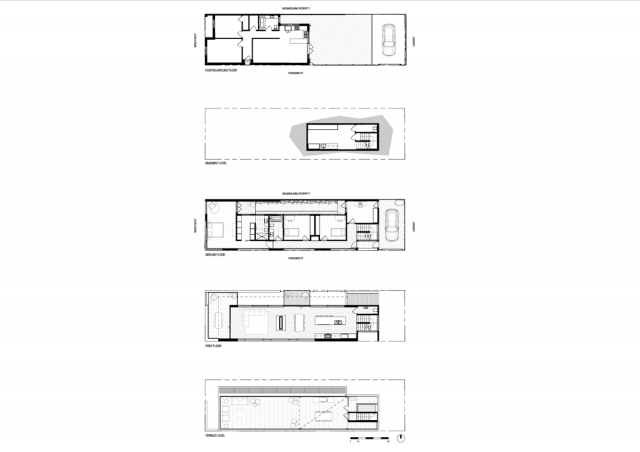
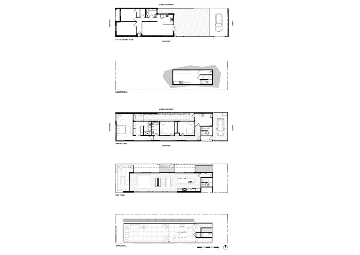
Milton Architecture’s design response drew on the existing brick boundary walls and extended them along both street frontages to envelope a series of ground level bedrooms.

These rooms are orientated towards a secluded north-facing internal courtyard which provides light and natural ventilation to these rooms.

The private nature of this courtyard enables each room to utilize floor to ceiling windows to create a sense of light and openness.

At the first floor level, window apertures to living areas were increased to enable outward views towards the surrounding streetscape.

High window sills at this level restrict pedestrian views from street level balancing privacy and the ability for the owners to enjoy an outlook over the surrounds.

Small terraces and balconies were incorporated into this level providing the owners with an ability to extend living functions into outdoor spaces.

At roof level, the Milton Architecture design created a large outdoor terrace area which provided  a substantial outdoor living space in place of the traditional backyard.

A key component of the outdoor terrace area was the inclusion of a permanent pergola structure to create shelter from the elements, particularly in the summer months.

Each level is connected via a common stair which also acts as a light well for the ground floor entry and basement level.

The open nature of the stair is balanced by a solid central wall to again restrict views from street level into the primary living spaces.

Project Details

Project Size – 331m2
Site Area – 175 m2
Completion Date – 2017
Building Levels – 3

Project Team

Architecture

Milton Architecture

Tim Milton founded Milton Architecture to provide an approachable, professional and collaborative service for people to create their ideal home.

He draws on years of experience across Australia and the UK, working with major firms across high-end multi-residential designs, home designs, and commercial retail projects.

Tim designs striking contemporary residences in inner-city and inner-suburban areas, as well as rural properties.

www.miltonarchitecture.com

Photography

Emily Bartlett

Emily s a Melbourne-based commercial photographer, specialising in architecture and interiors.

www.emilybartlettphotography.com

Photo Gallery

Click on a thumbnail image to enlarge.

Design © 2020 Milton Architecture. All Rights Reserved.| Images © 2020 Emily Bartlett. All Rights Reserved.

Get the Builtworks Letter

In every edition of the Builtworks Letter, you’ll get the behind-the-scenes backstory as to how buildings are designed, built, and brought to life.

You’ll hear compelling stories, learn surprising ideas, meet engaging characters, and discover unique voices.