The Burton Street Tabernacle, in inner-city Darlinghurst, Sydney operated as a Baptist Church from 1887 until 1996.
The Tabernacle was a favourite place of worship for many Sydneysiders and was the source of inspiration for pavement scribe Arthur Stace’s most famous message, ‘Eternity’, which he wrote on Sydney footpaths for over 30 years.
The City of Sydney purchased the Tabernacle in 2004 and commissioned Tonkin Zulaikha Greer Architects to adapt the building as an intimate 200-seat theatre for a rapidly-growing professional company specialising in new drama.
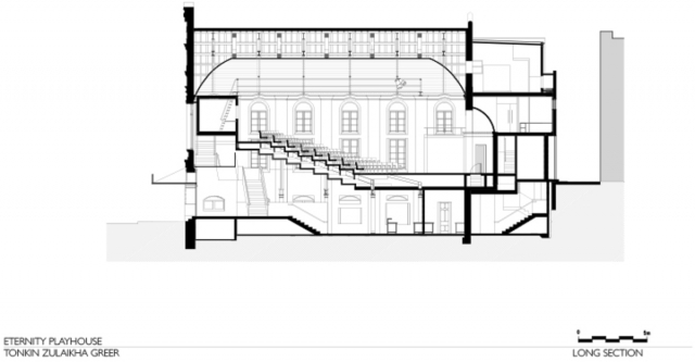
The complex and detailed requirements of the brief strained the capacity of the building, requiring the 1930s rear wing to be replaced by a totally-new four-level addition, containing back-stage facilities, dressing rooms, administration, and plant, linked by a glass foyer with a sculpted steel stair and lift.
The main entry used the original church entry to Burton Street, where original arched openings have been restored.
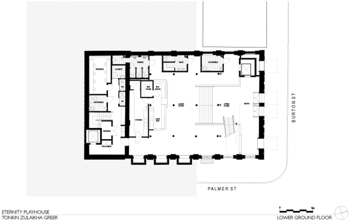
A generous new stair descends to the lower level where the old dank space is now day-lit and open, accommodating the foyer, café bar, and box office.
The revised and improved rake of the seating, lined with the reused timber from the church floor, forms a lively ceiling to this space.
The auditorium provides an intimate actor to audience connection with flexible staging arrangements.
Extensive soundproofing was installed including multiple layers of glass to the restored stained glass windows.
Internally and externally, original finishes were conserved and restored, and new elements reused salvaged material where possible.
The City of Sydney has set out a framework for the sustainable growth of Sydney in the ‘Sustainable Sydney 2030’ strategy.
The Eternity Playhouse project addresses its goals within the constraints of a confined site and heritage conservation, closely integrating sustainability with every aspect of the design and construction of the building.
Extending the lifespan of the existing structure not only contributes to the cultural vibrancy of the area but also provides significant environmental benefits by saving the embodied energy of retained structures and heritage fabric.
The new tiered seating has a hybrid structural system using new steelwork partly supported and braced by the existing cast iron structure.
This was difficult from a design, fire and construction standpoint, but the environmental, heritage and aesthetic benefits are tangible.
Original materials are reused wherever possible.
The church flooring and joists are recycled as the stepped ceiling of the foyer, whilst original timber doors and panelling line selected walls and are reused in the WCs.
Photovoltaic cells installed over the existing roof slates provide 10KW of power.
Fully dimmable LED lights are used throughout the project for general lighting and are included in the theatre lighting system.
The use of energy efficient lights significantly reduces the electrical consumption of the building.
A highly efficient under-floor plenum air conditioning system serves the theatre, conditioning the audience rather than its entire volume.
This system switches to serve the foyer prior to the show, avoiding the need for a separate system dedicated to the foyer.
Water storage cells are incorporated below the lower ground floor slab to harvest rainwater for toilet flushing.
Sustainability was not confined to the design of the project.
The building contractor was required to recycle as many materials as possible and provide detailed waste management reports throughout the construction stage.
The project has been hailed a success as it directly fulfilled the brief, creating a ‘destination’ theatre where the players and the audience appreciate the mix of old and new architecture, a flowing sequence of spaces, and an auditorium with excellent acoustics and sightlines.
The project balanced and resolved two differing ideologies – the adaptive reuse principles of the Burra Charter and the technical requirements of a contemporary theatre to create a community place of character, quality, and durability.
By enabling the conservation of the long-neglected but significant church building, the project preserved both its fabric and its focal neighbourhood presence, providing a growing cultural organisation with an accessible, high-quality venue allied with a multi-use gallery and café.
The heritage significance of the original building underlies all of the key design decisions, shaping the spaces and guiding the use and reuse of materials and the layout of the many services.
The rear contemporary addition accommodates four levels of technical facilities and back of house services that are essential to the project.
To Burton Street, restored openings and new glass canopies invite the public into the building, whilst the reconstructed stained glass windows form a glowing beacon at night.
The major design challenge related to the layout of the stage and seating within the volume of the original church to achieve a great audience/actor relationship and the required 200 seats.
The result of TZG’s scheme conserves both the unique timber ceiling and the day lit character of the space, but with full light and sound control.
The formerly dark basement below street level was reworked into a light-filled and flowing foyer/bar, now linked directly to Burton Street, with a carefully-modulated processional route up to the auditorium.
Project Awards
- 2014 Lachlan Macquarie Award for Heritage, AIA National Awards.
- 2014 AIA NSW Greenway Award for Heritage Architecture Creative Adaption.
- 2014 Master Builders Association NSW – Adaptive Reuse of a Historic Building (Construction $5M – $10M)
- 2014 Adaptive Re-use Award (NSW) National Heritage Trust.
Project Details
Project Size – 1,200 m2
Completion Date – 2013
Project Team
Architecture
Tonkin Zulaikha Greer Architects
Tonkin Zulaikha Greer has a special interest in public spaces, public buildings and “edge” architecture, often providing buildings with roles and uses outside their traditional functions.
The crossover between art and architecture is a springing point for a design philosophy, which takes each project as a new challenge, without reliance on established precedents.
Constant reinvention of their architecture brings a surprising diversity to their completed projects, with an on-going sense of exploration and discovery.
The work is consistently and thoughtfully grounded by appropriateness and sustainability.
The TZG team for this project included:
Peter Tonkin, Julie Mackenzie, Jeremy Hughes, Bettina Siegmund, Nazia Kachwalla, Roger O’Sullivan, Tamarind Taylor, and Alison Osborne.
Project Management: City of Sydney
Town Planning: Glendinning Minot & Associates
Structural Engineering: Simpson Design Associates
Hydraulic, Electrical, Mechanical, Services Engineering: Wood & Grieve Engineers
Environmental Consultant: Wood & Grieve Engineers
Theatre Consultant: Tony Youlden Theatre Consultant
Kitchen Consultant: Cini Little Kitchen Consultant
BCA Consultant : GRS Reports
Traffic Engineering: Varga Traffic Planning
Acoustic Consultant: Acoustic Studio
Access Consultant: Accessibility Solutions
Signage Consultant: Marshmallow
Construction: Kane Constructions
Photography
Brett Boardman
Brett is a well-established commercial and architectural photographer based in Sydney.
Photo Gallery
Click on a thumbnail image to enlarge.
Design © 2020 Tonkin Zulaikha Greer Architects. All Rights Reserved.| Images © 2020 Brett Boardman. All Rights Reserved.
Get the Builtworks Letter
In every edition of the Builtworks Letter, you’ll get the behind-the-scenes backstory as to how buildings are designed, built, and brought to life.
You’ll hear compelling stories, learn surprising ideas, meet engaging characters, and discover unique voices.

















