Designed by Jane Riddell Architects, the addition to the Charred Wood House was conceived as a contemporary companion to the existing red brick post-war structure.
The existing 1940s house is a red brick post war structure that had dark introverted spaces.
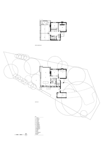
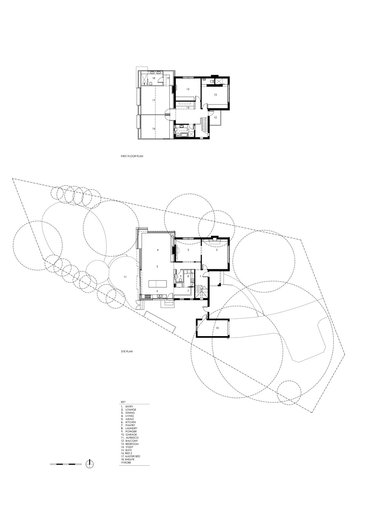
The rear of the house was demolished to make way for an informal living, meals area, and kitchen that would engage with the surrounding woodland setting.
Similarly the first floor was reconfigured to afford private views into tree canopies and tall hedges from the bedrooms.
The pitched roof of the existing house was replicated in the first-floor addition, allowing lofty raked ceilings to the bedrooms. Its resultant extruded gable form is a recognizable abstraction of the existing.
As a counterpoint to the solidity of the clinker brick of the original house, the addition is light weight and clad at the upper floor in charred timber.
The charred timber cladding acts as a counterpoint to the leafy woodland context the house resides in, and embeds the house in the woodland.
Its ebony hue contrasts with the verdant green of the surrounding and living, leafy canopies.
The durability, and low maintenance qualities of the selected external raw material make it both a complimentary and a sustainable choice for the harsh Australian climate.
The underlying principal with this project was to create a place of engagement – people to people and built form to environment.
Modern volumes and finish, along with complementary and well-paired form, contribute to longevity in use and liveability.
Integral to Jane Riddell Architect’s brief was the opening up of existing, segmented internal spaces to engage with each other more effectively and also create a dialogue with the triangulated garden.
The channelling of natural light and views into these spaces, while maintaining a sense of privacy, was also important.
These aspects of the brief were functionally achieved by the partial demolition of the existing structure to make way for a full-length volume for the kitchen and informal living/dining areas which have a direct relationship with the garden.
At the first-floor shrouded windows enable framed private views into the tree tops.
The Jane Riddell Architects’ design of the Charred Wood House enabled their client to inhabit a space that is outward looking and engaged with its context, but at the same time private.
The added informal living areas that connect with the garden contributed to the sociability of the house, allowing for extended family gatherings that readily flow from interior to exterior areas.
Given the modest budget the floor plate had to be simple and the volumes uncomplicated.
The resultant extruded gable form was a cost-effective way of achieving the required spaces whilst acknowledging new built form and providing some drama to the volume of the new first-floor rooms.
The charred timber cladding, used for both its raven colour and its longevity of finish, was also specified for its inherent economy, low maintenance and favourable comparison to other considered cladding systems.
Internal finishes are restrained, with cost effective matte and timber laminates used to offset Carrara marble and hand-made tiles.
Key Products Used
The charred timber cladding is the most dominant product used in the project. It was used for both its raven colour and its longevity of finish.
Jane Riddell Architects’ client requested a material that would be in tune with the woodland context of the site but that would require little ongoing maintenance.
Architecturally the material has an almost rough organic feel that worked with the extruded gable form and shrouded windows of the addition.
Project Details
Project Size – 280 m2
Site Area – 956 m2
Completion Date – 2018
Building Levels – 2
Project Team
Architecture
Jane Riddell Architects
Jane Riddell Architects is an architectural practice for people seeking a new home, holiday house or renovation that truly reflects their individual lifestyle and aspirations.
Jane Riddell is a registered Architect in Victoria, and is a long-standing member of the Australian Institute of Architects. She leads a small team of architects who share her passion for residential architecture – and for the people, places and processes involved in creating it.
www.janeriddellarchitects.com.au
Construction
BT Builders
BT Builders are a privately owned construction business based in Melbourne.
They service the private and residential market and focus on quality homes and extensions and the latest technologies that accompany them, regularly achieving 5/6 star energy rated builds.
Photography
Tom Roe
Tom is an internationally-awarded photographer from the Isle of Wight now based in Melbourne. After graduating in architecture at the University of Bath he took up architectural photography, using his strong understanding of materials, structure, and composition to produce compelling images for some of the world’s leading architects, designers, and builders.
Photo Gallery
Click on a thumbnail image to enlarge.
Design © 2020 Jane Riddell Architects. All Rights Reserved.| Images © 2020 Tom Roe. All Rights Reserved.
Get the Builtworks Letter
In every edition of the Builtworks Letter, you’ll get the behind-the-scenes backstory as to how buildings are designed, built, and brought to life.
You’ll hear compelling stories, learn surprising ideas, meet engaging characters, and discover unique voices.




















