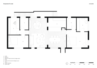
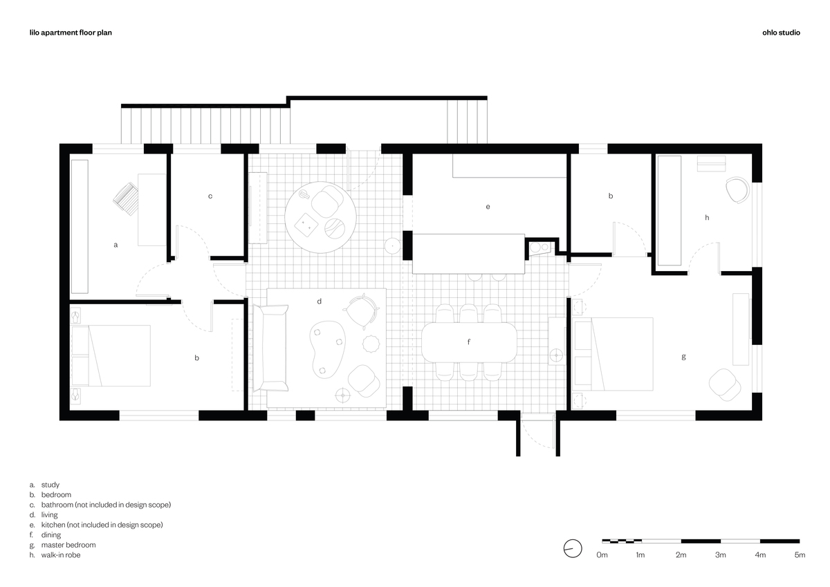
The Lilo apartment upgrade was designed by Ohlo Studio to play to the strengths of the beachfront art-deco building and create a laid-back, sophisticated refuge for their client.
As the client leases the apartment, the Ohlo Studio design minimised heavy intervention and used material applications to transform the previously run-down site.
A playfully resolved loose-furniture scheme creates lasting value.
Within economic limitations, the space was completely transformed without large demolition or impact on the original structure.
It is this sort of minimal intervention that allowed money to be spent on heirloom quality loose items so that when Ohlo Studio’s client relocates in five years-time, he will have a great furniture and art collection for life.
The cost of the fit-out spread over the five years is economical for the use and the impact it delivered for Ohlo Studio’s client.
Both the coffee and dining tables and the steel shelving throughout were custom designed and manufactured locally.
This provided the client with unique, personalised products and allowed Ohlo Studio to reduce carbon miles and support the local manufacturing community.
Ohlo Studio’s response to the brief was to:
- Minimize intervention (no structural or services changes) and maximize the strengths of the site (relating activities according to views and natural lighting and playing to the casual art deco atmosphere).
- Use richly coloured material applications to create a varied atmosphere within a small footprint. Wall colours were darkened and new carpets installed in the bedrooms to provide intimacy.
- Target the use of the budget efficiently by replacing an existing floating timber floor with a low cost floor tile with maximum impact and a mid-century flavour.
- Upgrade light fittings and dimmers throughout the home sensitively using existing services locations. Money was spent on occasional lighting wherever possible to reduce down lighting in an effort to create a sophisticated, moody atmosphere and decrease base build spending.
- Specify a collection of refined and yet playful, high quality furniture, lighting and artwork that would stay with the client for many years. Ohlo Studio has a philosophy of ‘buy it once and buy it right’ and applied this to the scheme in a financially balanced way. Higher expense items were offset with simple, inexpensive custom designed steel shelving and side tables.
In today’s residential world, especially among the younger demographic, a lot of people are readjusting to the reality of the housing market and taking on long term leases as opposed to buying.
This means that creating a real home in a rental is important.
Bucking the IKEA ‘fast turnaround’ furniture trend is sustainable and essential in this new environment.
With this project, Ohlo Studio did exactly that.
Key Products Used
- Lewis Sofa by Jardan
- Ginger Floor Lamp by Marset
- Officina Armchair by Magis
- Officina Low Chair by Magis
- Custom Timber Coffee Table designed by Ohlo Studio, made by Remington Matters
- Ace Side Table by Jardan
- Stockholm Sideboard by Punt
- Tab Lamp by Flos
- Custom Dining Table designed by Ohlo Studio, made by Remington Matters
- Custom Shelving and Bedside Tables designed by Ohlo Studio, made by Remington Matters
Project Team
Design
Ohlo Studio
Ohlo Studio, based in South Fremantle in Western Australia, is a cross-disciplinary design practice with expertise in design for the built environment across a variety of scales.
Projects as diverse as hospitality precincts, family homes, public art, and object design form a body of work that’s characterised by an artistic, ideas-driven approach.
The Ohlo Studio design philosophy is rooted in the discipline of place-making.
Every project seeks to leverage the power of design to build the character and quality of place, and space, for businesses, individuals and communities; feeding financial and social benefit to their clients and beyond.
Ohlo studio projects go beyond inventive attention to detail and materiality.
They are rich in meaning and cognisant of history, community, and commerciality.
Photography
Patrick Schüttler
Patrick is based in Western Australia and is a well-established commercial and fine art photographer.
Photo Gallery
Click on a thumbnail image to enlarge.
Design © 2020 Ohlo Studio. All Rights Reserved.| Images © 2020 Patrick Schüttler. All Rights Reserved.
Get the Builtworks Letter
In every edition of the Builtworks Letter, you’ll get the behind-the-scenes backstory as to how buildings are designed, built, and brought to life.
You’ll hear compelling stories, learn surprising ideas, meet engaging characters, and discover unique voices.










