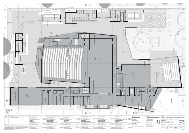
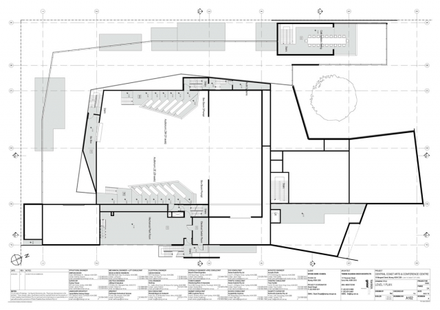
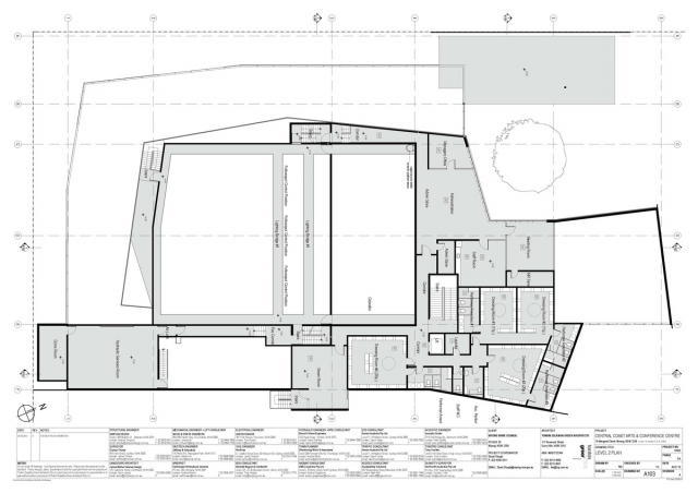
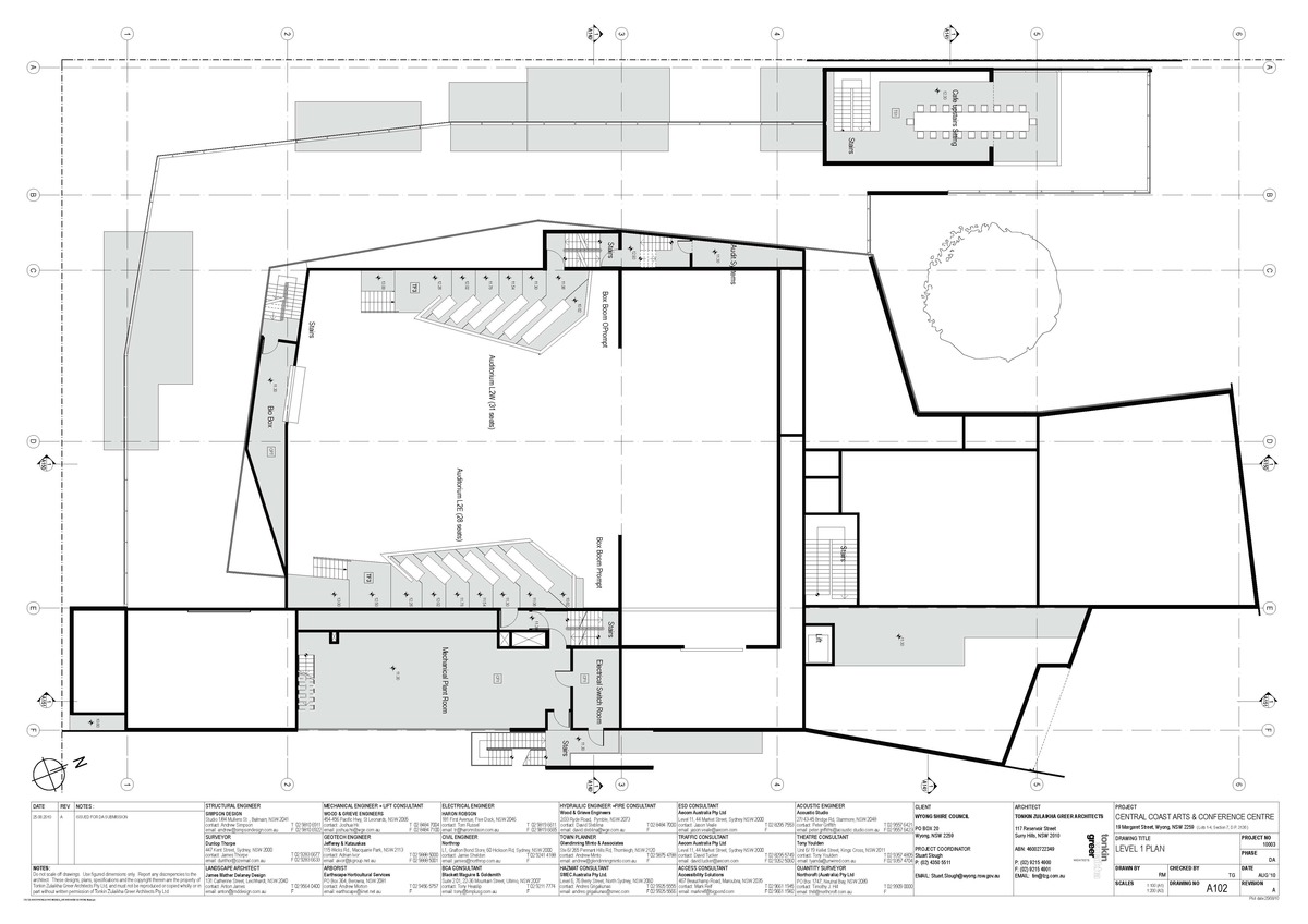
The Wyong Art House comprises a 500 – seat variable theatre, performance studio, associated support space, naturally lit foyer, café, and courtyard.
It was built to a modest budget.
Tonkin Zulaikha Greer Architects’ project brief was to establish a venue for the growing, established, and emerging musical, dance, and theatre companies in the Wyong area on the Central Coast of New South Wales in Australia.
At the street edge, the Wyong Art House foyer is flanked by a series of house-sized forms of similar scale to the suburban houses to the north of the site.
Located over these ‘houses’ is a floating foyer roof that makes a welcoming gesture to the ANZAC Parade and Margaret Street corner while establishing a scale compatible with the adjacent Council Chambers to the south.
The theatre has a central bank of seating and elevated side galleries, with a fully equipped lyric stage and fly tower.
The sightlines have been computer-modeled and the sound performance is designed to exacting standards.
Project Details
Project Size – 4,000 m2
Completion Date – 2016
Project Team
Architecture
Tonkin Zulaikha Greer Architects
Tonkin Zulaikha Greer has a special interest in public spaces, public buildings, and “edge” architecture, often providing buildings with roles and uses outside their traditional functions.
The TZG team for this project included Tim Greer, Regina Meyer, Jeremy Hughes, Alison Osborne, Anton Van Den Berg, Vanessa Van Schalkwyk, Roger O’Sullivan, and Jim Booth.
Landscape Architecture
JMD Design
JMD design is a landscape architectural practice committed to designing sustainable, creative, and liveable outdoor environments that contribute to the social, cultural, and environmental wellbeing of all.
Acoustic Engineering
Acoustic Studio
Acoustic Studio Pty Ltd is an acoustic consultancy based in Sydney, Australia. It was established in 2003 by Peter Griffiths, an acoustician with over 40 years of experience as an acoustic consultant in Australia, the UK, and South East Asia.
Theatre Consultants
Tony Youlden and Schuler Shook
BCA Consultant
Blackett Maguire & Goldsmith
Blackett Maguire + Goldsmith has delivered high-end building regulations consulting and certification services to the construction and development sectors for over 15 years.
They have a strong history of working with both public and private clients across a range of projects, from commercial and industrial, to aged care and defense.
ESD Consultant
AECOM Australia
AECOM is a fully integrated firm with offices in 20 locations across Australia and New Zealand.
The firm connects knowledge and experience locally and across its global network to help clients solve their most complex challenges.
From high-performance buildings and infrastructure to resilient communities and environments, their renowned solutions to building great spaces and places that transform urban environments are highly valued and widely recognized.
Quantity Surveying
Northcroft
Northcroft has been serving clients in Australia since 1964, when their first director, Newton Davis, established an office in Sydney in association with Northcroft UK.
The name Northcroft has been synonymous with Quantity Surveying for over 180 years.
Photography
Eric Sierens
Photo Gallery
Click on a thumbnail image to enlarge.
Design © 2021 Tonkin Zulaikha Greer Architects. All Rights Reserved.| Images © 2021 Eric Sierens. All Rights Reserved.
The Builtworks Quest
At Builtworks, we’re on a multi-year quest to document, showcase, and spotlight the best of Australia’s built environment.
That’s why we’re creating this comprehensive online archive and educational resource that showcases a diverse and eclectic range of project types and scales.
Together with showcasing older exemplars of enduring merit, we spotlight and celebrate the very best new and recent additions to Australia’s built environment.
















